香港无间首创天阅西山下跃豪宅样板间丨效果图+全套施工图+PPT物料书 - CAD图库丨图纸 酷模设计吧-名师方案-设计案例-软装素材-CAD素材-SU/3D模型-设计师干货打包下载!

香港无间首创天阅西山下跃豪宅样板间丨效果图+全套施工图+PPT物料书

[复制链接]
kuum 发表于 2020-9-23 16:05:08 | 显示全部楼层 |阅读模式
家装空间
家装分类: 精品样板间
风格分类: 现代简约
请点击此处下载

请先注册会员后再进行下载

已注册会员,请先登录后下载

售价:35 酷币  |   | 收藏数量:6  
下载权限: 不限  (已享有下载权限 ) 以上或 VIP会员   [开通 VIP 会员]  [下载说明,如何下载?]

+ A8 M% E7 P$ I8 G* U7 U, o
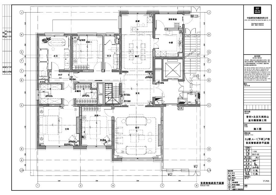
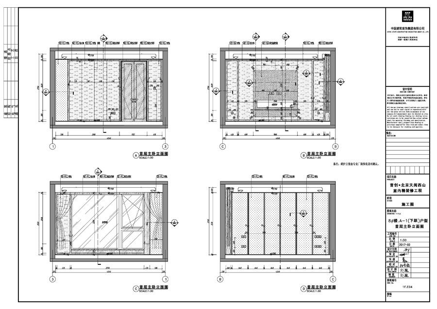
[北京]首创天阅西山下跃豪宅样板间丨效果图+全套施工图+物料书. K/ ?8 v$ d0 @& h: W
资料内容包括;CAD全套施工图(设计说明、目录、平面图、立面图、节点图、节点大样图,给排水,照明电气等图纸)PPT物料书,效果图等  x# ~  H/ U8 v: Z* N/ t) T  [$ p% v
空间划分:四居室4 J5 h: B8 d. H' z, c0 o. C
结构类型:复式,跃层
1 ?- N: N: d3 i2 X图纸深度:施工图# H1 b  ?' I- ?4 n  N' ~
项目位置:北京0 K$ m4 S6 D/ m
设计风格:现代风格
; J; @5 Q! H; @( B图纸格式:JPG,天正7,CAD20003 O( [1 e0 g3 n6 Y! l* n
A (1).jpg
% \' e: \) ?" A+ k  p* l7 }' j A (2).jpg
: B, [3 ^& J$ Z# n A (3).jpg - X* ~6 E$ b+ J$ f
A (4).jpg ! {3 \! k7 k  d' e% R1 ]7 j: Q$ F
A (5).jpg
7 n4 d3 K/ B/ ?; d5 [% ^3 `9 C A (6).jpg 1 K- w" o0 F4 s/ u" U1 m8 B
A (7).jpg 5 x) x5 b) }4 O3 J
A (8).jpg 6 r% S; h+ \: h' R" x5 r
A (9).jpg 4 O7 Y; b) @( M7 b; S" W
A (10).jpg 4 @: J& V' G- t! O& \1 S7 a9 H
A (11).jpg
' w, k3 s$ r: F A (12).jpg 8 A5 I2 U6 T$ i3 v, c- R) c# K
A (13).jpg
6 B+ k5 y6 B! d3 I9 z A (14).jpg
% ^0 \5 m6 k$ G+ }9 P A (15).jpg ( ?# @2 [0 D0 c! T& s" h1 p
A (16).jpg + Q+ w( N4 l: U& c3 e. t+ i
A (17).jpg / V  y. ~6 m) [1 p! X! W
A (18).jpg : d. K& F/ J( a& k% u5 U9 j9 y
A (19).jpg
  Y1 s, n  f  L, ~8 O5 g* W A (20).jpg
2 o1 T# i% C" y5 @% @3 | A (21).jpg 2 E" w+ [9 C/ X8 ]/ ?$ _
www.kumo8.com (2).jpg
0 j* F8 {; \' [0 x. M5 z8 y www.kumo8.com (3).jpg
; ~2 G) d3 M% c! f, A www.kumo8.com (4).jpg
+ _3 }$ ~& y$ v# g2 W  q www.kumo8.com (5).jpg
; ^9 Q6 f/ [. ^% Q2 \# u: b. O www.kumo8.com (6).jpg 9 j0 H9 B5 }3 z# ~$ c+ Z6 G. O( v% T
www.kumo8.com (7).jpg
% W1 t8 |2 \+ C; i3 F" J. F1 u www.kumo8.com (9).jpg
# `8 g/ g4 S! t1 a: d www.kumo8.com (11).jpg
- W/ a: d8 Z5 W1 ]0 f# m+ \ www.kumo8.com (12).jpg
( ?8 _! H6 E# u3 B) h) [
7 g) H, q; `/ C, B/ }* V+ U. p6 K0 k$ f* p9 Y; G2 ?/ y
回复

使用道具 举报

免责申请:①本站仅提供上传平台服务,用户可上传资料且通过审核后可获取“酷币”,每日登录也可免费获得;会员费用仅作用于平台服务费! ②本站不提供任何保证,并不承担任何法律责任,如有侵犯您的相关权益,请提供相应的资质证明,邮件联系站长删除!
在线客服(工作时间:10:00-22:00)
设计干货分享

Copyright   ©2015-2016  酷模吧  Powered by©技术支持:www.kumo8.com     ( 苏ICP备19074792号-1 )