郑州永威西郡售楼部办公匠造工艺馆丨软装方案效果图彩平彩立施工图物料 - CAD图库丨图纸 酷模设计吧-名师方案-设计案例-软装素材-CAD素材-SU/3D模型-设计师干货打包下载!

郑州永威西郡售楼部办公匠造工艺馆丨软装方案效果图彩平彩立施工图物料

[复制链接]
kuum 发表于 2020-11-2 22:34:48 | 显示全部楼层 |阅读模式
商业展览
商业空间: 售楼中心
风格分类: 现代简约
请点击此处下载

请先注册会员后再进行下载

已注册会员,请先登录后下载

售价:36 酷币  |   | 收藏数量:7  
下载权限: 不限  (已享有下载权限 ) 以上或 VIP会员   [开通 VIP 会员]  [下载说明,如何下载?]


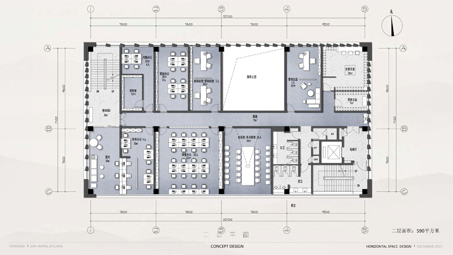
" G. Z* g& I6 s$ W[河南]郑州永威西郡售楼部及办公设计施工图+ Y( m0 _8 V9 c% X9 @! w* o4 Q
资料内容包括:售楼处及办公区CAD施工图(图纸目录,施工图设计说明,平面图,立面图,节点大样,电气,给排水等图纸)效果图,深化方案,软装方案,概念方案,彩平彩立,物料书等5 \2 b3 O- t/ s  T4 c
空间划分:成套商业$ `  A/ U3 X0 Z0 K% i9 N; X
空间类型:售楼处
0 @. X6 m  k& i, l4 z0 ~3 H图纸深度:施工图1 }6 S9 I4 V; `9 a
项目位置:河南/ g0 T# B1 u; @8 l8 v! A
设计风格:现代风格,新中式风格
3 Z9 D6 j) L4 f8 F7 c2 e& j图纸格式:JPG,CAD2000,PDF,PPT
4 U6 m+ \" V% r. P, |+ g包含图片:效果图  V% [5 s! z  `& ^- d6 q/ r+ a
楼层数:5层 07.jpg 1 x7 z6 I2 X! N) |$ v
08.jpg
0 O2 G0 M$ C) w' X 09.jpg
; t9 c9 I; Y: x) w- E; l7 m% f 10.jpg
* G& I9 g2 q. @4 w7 S# Q) l& H+ Z 11.jpg 4 [( i' C$ y8 n; t
12.jpg
7 x0 @9 T4 t3 O, `6 W$ F% q 13.jpg
( \- E& G! u+ G( x9 T' u% o 14.jpg
: s- W5 \# d+ ]  G! A$ Y 16.jpg 1 n2 d# A4 E0 W5 I0 k7 x
17.jpg
: h5 V0 B4 c6 V$ e+ v2 i0 | 20.jpg
9 J9 H+ K7 m* M 21.jpg + R! W0 Q( L$ r8 @* b" D
22.jpg 4 ]- D# l# z9 C1 |* B- b9 B
23.jpg ) M, K5 j) D( I* E: @
25.jpg
( z* {2 f* s, M7 q  j2 h 26.jpg 4 u& H% k  k3 V! ^& M+ l' q
27.jpg % h. r3 h* m5 k- y& [9 H3 s: k
28.jpg & m' F5 @* F1 M5 c: W% D
29.jpg
: e7 c6 w9 M/ r' w, h6 b* D2 o 30.jpg , N( E6 \& {  _* C" u4 Z+ Q* h; J
回复

使用道具 举报

免责申请:①本站仅提供上传平台服务,用户可上传资料且通过审核后可获取“酷币”,每日登录也可免费获得;会员费用仅作用于平台服务费! ②本站不提供任何保证,并不承担任何法律责任,如有侵犯您的相关权益,请提供相应的资质证明,邮件联系站长删除!
在线客服(工作时间:10:00-22:00)
设计干货分享

Copyright   ©2015-2016  酷模吧  Powered by©技术支持:www.kumo8.com     ( 苏ICP备19074792号-1 )