10套精选办公空间设计方案 施工图+效果图+实景图 - CAD图库丨图纸 酷模设计吧-名师方案-设计案例-软装素材-CAD素材-SU/3D模型-设计师干货打包下载!

10套精选办公空间设计方案 施工图+效果图+实景图

[复制链接]
kuum 发表于 2020-11-5 12:42:31 | 显示全部楼层 |阅读模式
办公会议
办公空间: 商业办公
风格分类: 现代简约
请点击此处下载

请先注册会员后再进行下载

已注册会员,请先登录后下载

售价:45 酷币  |   | 收藏数量:19  
下载权限: 不限  (已享有下载权限 ) 以上或 VIP会员   [开通 VIP 会员]  [下载说明,如何下载?]

" Q! Z1 k1 A) X( K  F9 G. d
本资料为10套精选办公空间设计方案,资料主要包括施工图,效果图,实景图5 N1 n1 B  u. v
空间划分:成套办公空间
/ [/ v3 s" ?4 }6 R办公类型:办公楼,写字楼
* k: m; i. v* @& z' E: D1 p图纸深度:施工图,竣工图
" X7 e( }2 Z0 @$ C0 `7 O设计风格:欧陆风格,中式风格,现代风格
! h" Y  l9 T1 [0 L! x图纸格式:JPG,CAD2000,PDF
' B  ?2 Y& X5 q/ l+ z2 d$ `包含图片:效果图,实景照片; u1 s# X' e( Z4 s6 ?% }
10套精选办公空间设计方案500M
% I: r) P9 ?* c' S1、鸿荣源壹方中心A塔办公大堂丨效果图+施工图9 k& G3 A& W5 o; U& i
2、[广东]融通华都办公室空间室内设计竣工图) u$ z, Z! d5 [" c' T7 Q. K$ `$ D
3、励业公社共享办公空间_效果+施工图+机电图
1 f( V4 _$ J0 z4 X( l. G% A: Q4、武汉矿业集团有限公司办公空间施工图
6 @  o" h. [! y- @& U/ T6 N2 Y5、[江苏]锦光生命书房办公空间施工图+实景图2 {" p$ {& n- e+ r) }# M$ P1 [0 W
6、[广东]BSD-小米深圳研发中心办公室装修CAD施工图+效果图15张8 T6 P% p$ f. ^7 a( V" b2 i6 x
7、[深圳]海松大厦创域设计办公室施工图+实景+ v8 h8 D( Q# w7 `  p
8、四川泽嘉建筑公司办公楼装修施工图+效果图
: s. y( Q( P5 x3 ~- a4 L% x7 `9、上海创客空间办公室(效果图+施工图)
" T7 u" h* s$ l* r10、[上海]广发证券上海国金16楼办公室施工图
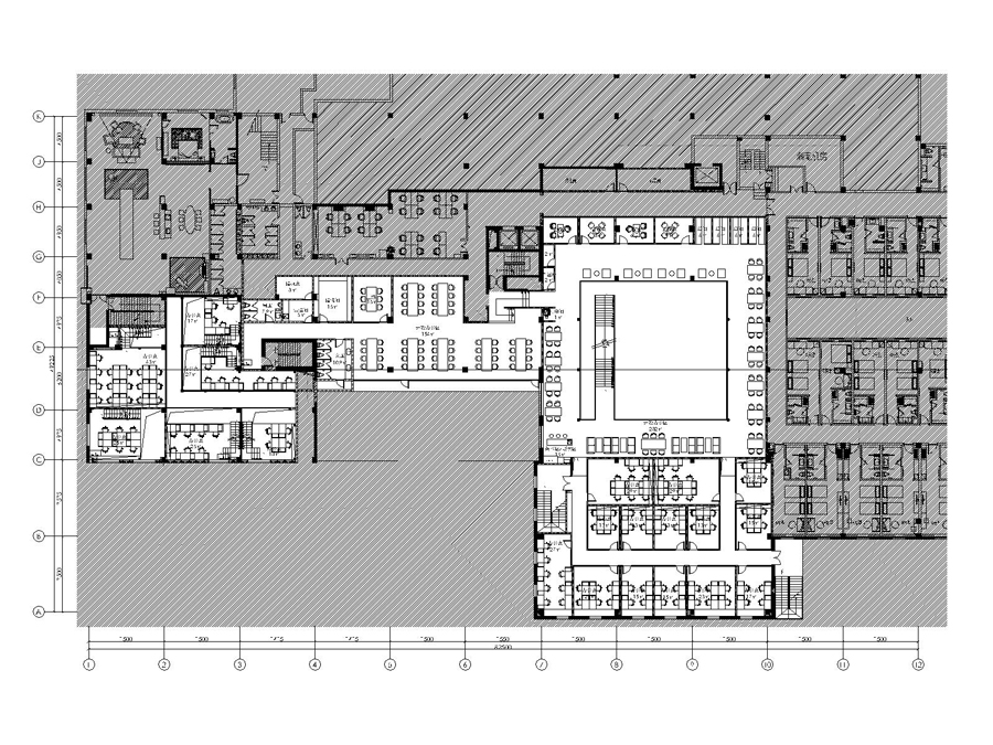
7 {2 G" O0 L/ b  l* k6 T( S5 q% U 01平面设计图.jpg
8 `4 V" X, ~% N' m" @7 l! {7 l 02综合天花图.jpg 7 w. v/ y, @& I! Q/ \% ]. W
03地坪设计图.jpg $ y3 ^/ c3 W9 ]! N/ _1 Z0 u5 V0 I
04墙体图.jpg
5 M! H/ i% ~+ C7 @: H* \3 V% E 05前台区立面图.jpg
% z3 y# V4 e" i; E6 |; G, ~& F 06中庭区立面图.jpg   z1 r# b) b. m' w' D: Z1 \  z
07活动空间立面图.jpg 9 v/ P! s6 I1 S
08玻璃房立面图.jpg
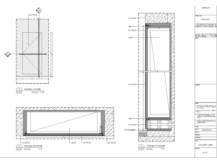
5 Z# w' ]: O% q* V2 R 09消防消防栓暗门节点.jpg
9 ~7 o8 O( r" y) H 10入口门大样图.jpg   c$ P% ^% j9 b- z/ T) ^8 A- Z: Z" s! z
11中庭下沉区卡座详图.jpg
2 @* o! ^; M) J- z: B 12办公区2.jpg
: q. R2 w5 @  l 13办公区1.jpg
( a! R3 N- }" g9 q 14前台休息区1.jpg / d& w3 o" O+ n* ]3 f! }
15前台休息区2.jpg 3 z( F1 P. W7 T& Q0 ^7 M/ h. f7 E
16中庭2.jpg
7 i* w; ]/ ?. D7 \& S% i6 z3 m, H6 h& U! U3 D$ y
回复

使用道具 举报

免责申请:①本站仅提供上传平台服务,用户可上传资料且通过审核后可获取“酷币”,每日登录也可免费获得;会员费用仅作用于平台服务费! ②本站不提供任何保证,并不承担任何法律责任,如有侵犯您的相关权益,请提供相应的资质证明,邮件联系站长删除!
在线客服(工作时间:10:00-22:00)
设计干货分享

Copyright   ©2015-2016  酷模吧  Powered by©技术支持:www.kumo8.com     ( 苏ICP备19074792号-1 )