金地紫乐府住宅装饰设计丨施工图+效果图+ 3D模型 - CAD图库丨图纸 酷模设计吧-名师方案-设计案例-软装素材-CAD素材-SU/3D模型-设计师干货打包下载!

金地紫乐府住宅装饰设计丨施工图+效果图+ 3D模型

[复制链接]
kuum 发表于 2020-11-10 13:12:46 | 显示全部楼层 |阅读模式
家装空间
家装分类: 精品样板间
风格分类: 中式风格
请点击此处下载

请先注册会员后再进行下载

已注册会员,请先登录后下载

售价:45 酷币  |   | 收藏数量:8  
下载权限: 不限  (已享有下载权限 ) 以上或 VIP会员   [开通 VIP 会员]  [下载说明,如何下载?]


9 p/ @' s, u1 I; t% y; K# K& h内容简介: 金地紫乐府住宅装饰施工图+效果图+ 3D模型4 |" q( ]# [: U7 `/ J9 V& r3 t0 R
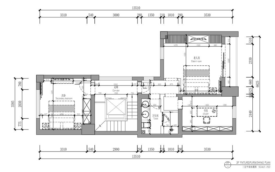
资料内容包含:CAD施工图 封面,图纸目录,装饰设计说明、图例说明、材料表、总平面图、原始平面图、平面图布局图、平面配置图、立面索引图,隔墙定位图,地坪布置图,综合天花图,灯具连线图 等6 y) j3 k! {. H* |$ e
空间划分:三居室0 ]: w0 w4 h+ ?3 Q3 [
结构类型:平层
8 l) j8 S7 ]6 B8 r5 a* ~3 P图纸深度:施工图. [- f, o- E: S
项目位置:广东
) I3 o; n$ j6 L
01.jpg 6 C) z3 I( F. R) K& m% B9 ^
02.jpg
6 z% b/ ^+ _/ u2 g 03.jpg
7 l9 L2 [' @6 u) d, W 04.jpg # ]3 e0 G. D% c, l6 r" u1 p2 |
05.jpg ! V" k" Z% ^0 [  L* _, A7 R
06.jpg
5 F0 A; X% k0 n; d* }; ]! w 07.jpg 7 |3 B- V5 d9 W9 X
08.jpg $ P; v  @5 }- ]& L! S0 i: W1 z9 `% p
09.jpg
: A  A' U) c+ ~: r6 `4 B/ o 10.jpg
) @$ {8 L+ l1 F) y$ h5 H 效果图 (1).jpg
* q# V; {0 }' _  R& |- T. W 效果图 (2).jpg
' Z7 {6 b/ ^6 U3 ?1 S* G7 u 效果图 (3).jpg 2 _5 E( m6 z- m# Q! H$ k
效果图 (4).jpg 1 ]# Y/ m. D) u4 n3 t& l# w0 q
效果图 (5).jpg 4 k* o: ?1 \* A
效果图 (6).jpg
/ D' o# [+ e5 S3 h 效果图 (7).jpg 0 o6 K4 i4 k+ I3 _) {" g0 P  K
效果图 (8).jpg
6 y  s" [2 D/ x( p* F6 m& s 效果图 (9).jpg
1 a. U' |" S, z. `, \ 效果图 (10).jpg & C/ r, L8 v& i

+ X4 ], F. ~7 G8 T. B! d: ~! S2 S% T
$ _' t3 ~. h# D7 y6 B& }( _# y" l5 \8 N

+ B' G1 B  s1 H$ N0 L; ]
回复

使用道具 举报

免责申请:①本站仅提供上传平台服务,用户可上传资料且通过审核后可获取“酷币”,每日登录也可免费获得;会员费用仅作用于平台服务费! ②本站不提供任何保证,并不承担任何法律责任,如有侵犯您的相关权益,请提供相应的资质证明,邮件联系站长删除!
在线客服(工作时间:10:00-22:00)
设计干货分享

Copyright   ©2015-2016  酷模吧  Powered by©技术支持:www.kumo8.com     ( 苏ICP备19074792号-1 )